Dưới đây là 1 bộ hồ sơ bản vẽ thiết kế đầy đủ (Kiến trúc, kết cấu, điện nước, nội thất) để thi công của 1 công trình nhà mái nhật 1 tầng đã được thi công thực tế do Huka Home thực hiện. Mời quý khách xem tham khảo.
Phối cảnh ngoại thất

Cập nhật hình ảnh thực tế đã thi công


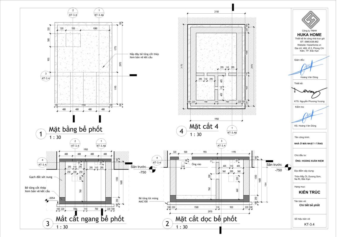
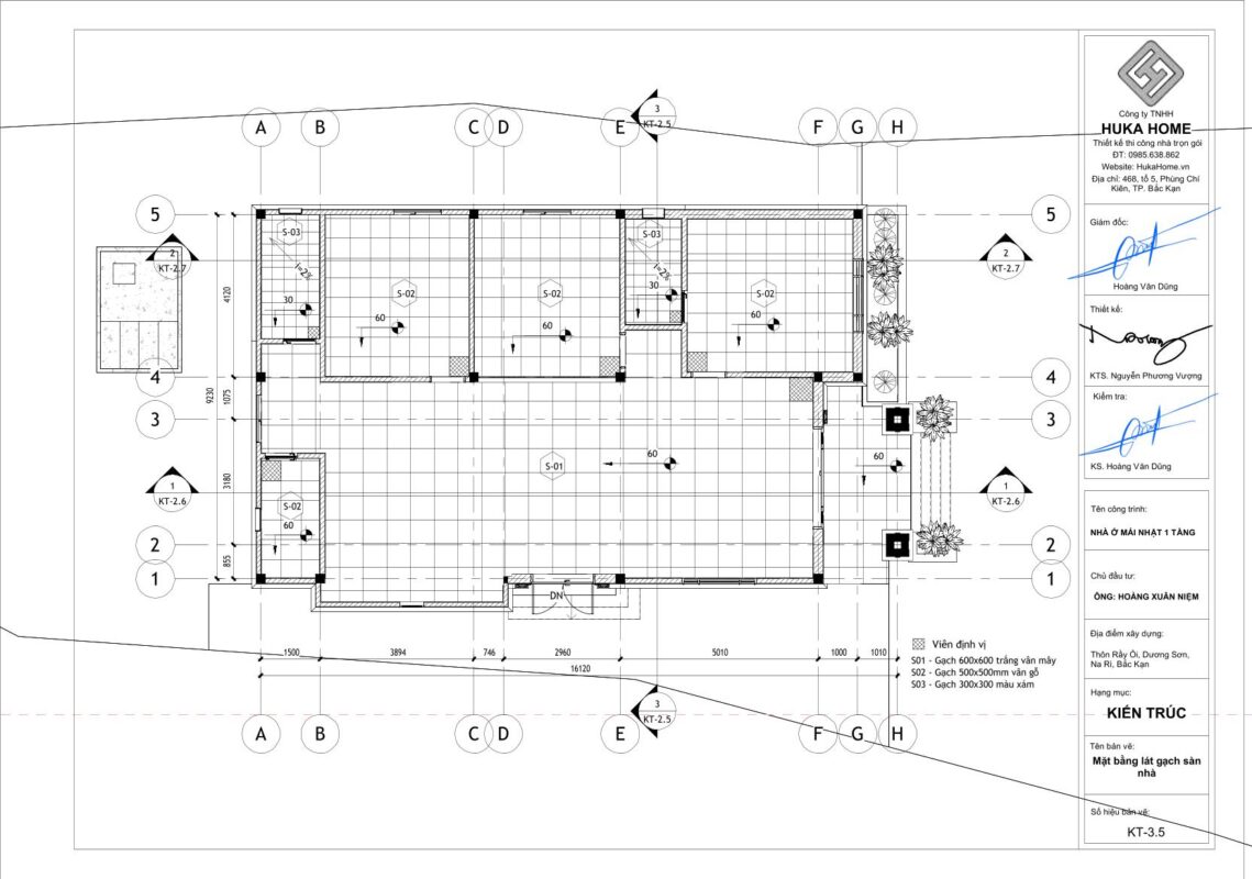
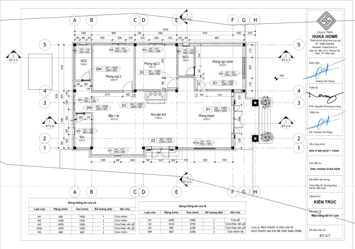
Phần kiến trúc





















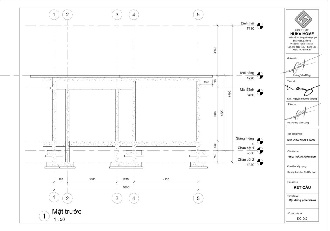
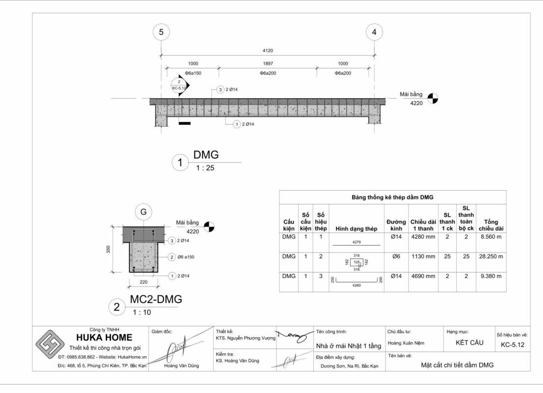
PHẦN KẾT CẤU

















































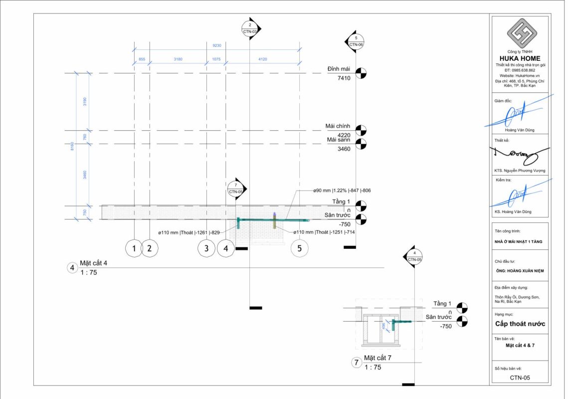
PHẦN ĐIỆN VÀ CẤP THOÁT NƯỚC











PHỐI CẢNH THIẾT KẾ NỘI THẤT




